The Witte Home

modern-home-nc.JPG

This modern home I got to design and build for my family.


Naturally I had a blast. It was conceived around a few simple concepts:

  • house 2 parents and 3 daughters (plus a few cats)

  • make it small but spacious

  • structure the house around a brick wall that extends from the exterior to the inside

To the street narrow windows provide privacy, as does a cedar slated wall towards the side porch.

To the street narrow windows provide privacy, as does a cedar slated wall towards the side porch.

View from the kitchen area.

View from the kitchen area.

The brick wall on the first floor.

The brick wall on the first floor.

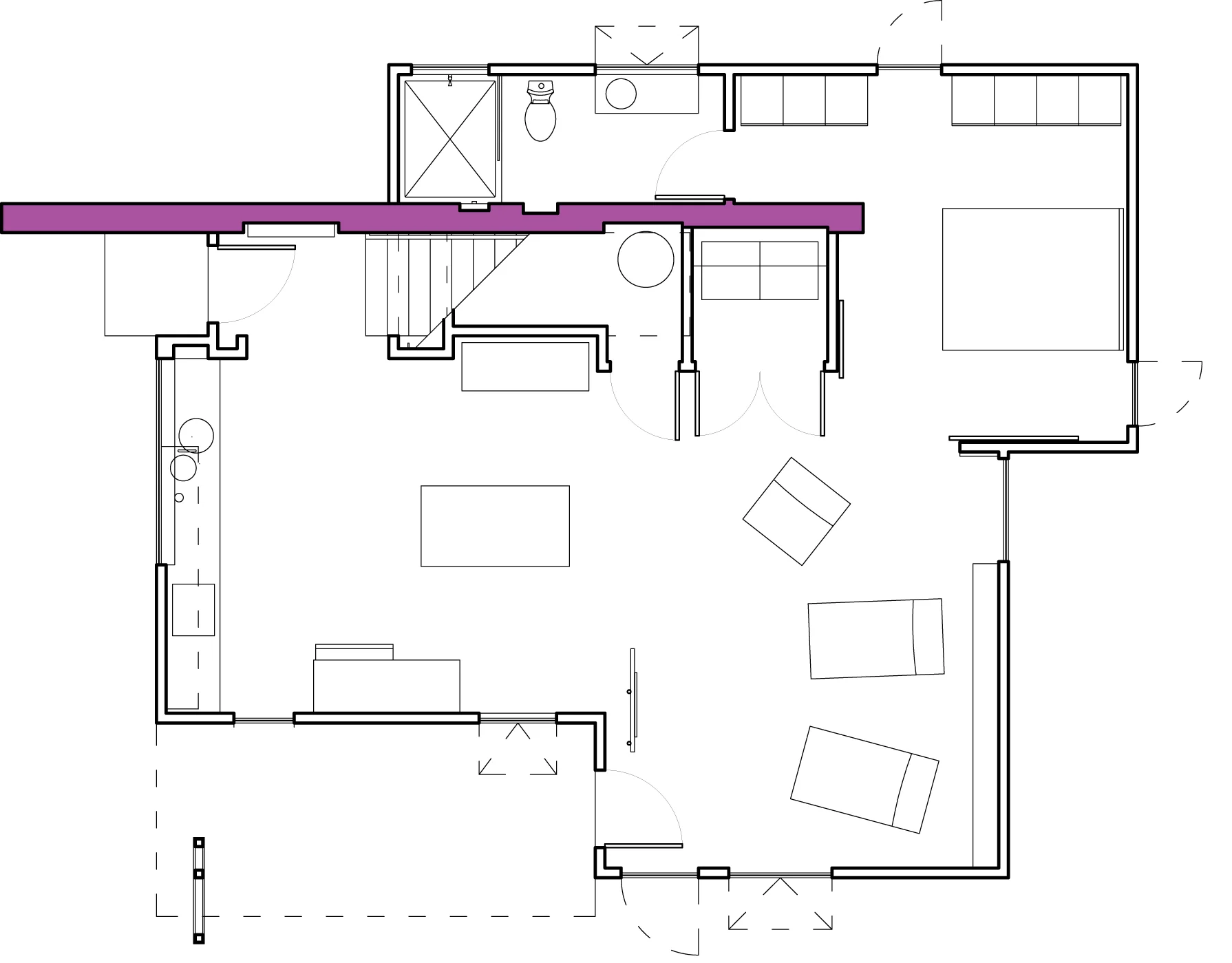
Soon in the process I discovered that if we were to pin-wheel the three bedrooms upstairs around the wall, we could not only cluster their entrances around one spot, each room could also have windows on three sides and views of other parts of the building.


As a result the 3 bedrooms for the children feel spacious and open. In addition the sisters also get to see each other, knowing to be surrounded by their family.


The three bedrooms upstairs pin-wheeling around the wall.

The three bedrooms upstairs pin-wheeling around the wall.

modern-home-architecture.jpg
Two large contemporary frosted glass sliding panels provide for privacy in the master bedroom area downstairs, while offering space and views to the living area during the day.

Two large contemporary frosted glass sliding panels provide for privacy in the master bedroom area downstairs, while offering space and views to the living area during the day.

The open floorplan and extended views..

The open floorplan and extended views..


The first floor plan is laid out as a fully functioning apartment for when the children might only come back as guests.


All the windows are 8' feet tall and rise from the ground up providing large open views to the outside.  They effectively increase the sense of space by adding the vast exterior square footage to the experience. The sliding panels to the master bedroom allow the dormant bedroom square feet to count as well, creating an overall feel of wide open spaciousness on minimal real estate.

~ Toby

Looking towards the master bedroom from the living area.

Looking towards the master bedroom from the living area.

The living room looking towards the kitchen.

The living room looking towards the kitchen.

The Kitchen.

The Kitchen.


 
 

The house received the 2018 3rd People's Choice Award of the North Carolina Modernist Houses Matsumoto Prize.

You can see more and read up on this home at Dwell, The Charlotte ObserverHome Design & Décor, Architecture Art Design, and Youtube. And a few details in the post Details.


Specs: 1,710 sf., 4 bedrooms, 2 baths, 2 car carport optional


Design With Us

Previous
Previous

McMansions

Next
Next

Making the Switch